Kielce , KSM

Mieszkanie na sprzedaż

Opis nieruchomości

TYLKO U NAS !
Biuro Nieruchomości
TWOJE M
Prezentuje ofertę sprzedaży lub zamiany
Komfortowe 3 pokojowe mieszkanie, po generalnym remoncie.
Doskonała lokalizacja dla rodziny lub pod wynajem



Główne atuty mieszkania:
- po generalnym remoncie
- gotowe do wprowadzenia
- jedna z najlepszych lokalizacji w mieście 
- atrakcyjne 2 piętro

- dużo terenów zielonych w pobliżu

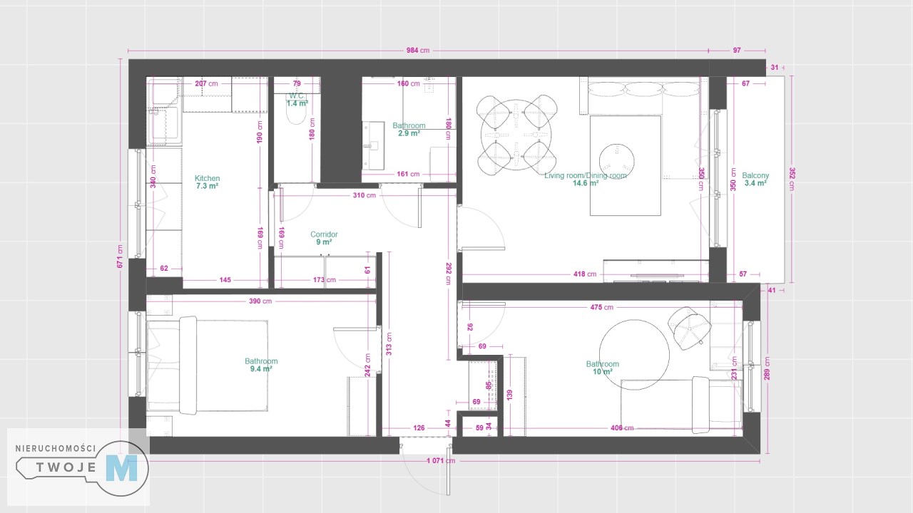
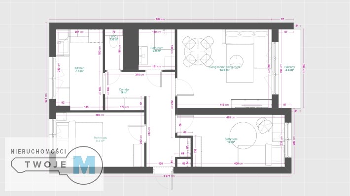
Oferujemy Państwu piękne, 3 pokojowe mieszkanie o powierzchni 53,88m2, z widną kuchnią. Lokal usytuowany jest na 2 piętrze, w monitorowanym bloku 4 piętrowym, przy ul. Dalekiej 23 w Kielcach. Nieruchomość położona jest w jednej z najbardziej atrakcyjnych i poszukiwanych lokalizacji na osiedlu KSM.

Na powierzchnię mieszkania składają się:
-
u
stawny salon z balkonem - 14,6m2
- osobna, widna kuchnia - 7,3m2
- przestronna sypialnia - 9,4m2

- funkcjonalny pokój, który idealnie sprawdzi się jako pokój dziecięcy - 10m2
- w pełni wyposażona łazienka - 2,9m2
- osobne WC - 1,4m2

- przedpokój z szafą w zabudowie - 9m2
Do mieszkania przynależy piwnica.

Wykonane prace remontowe:
-
wymiana instalacji elektrycznej oraz wodno-hydraulicznej
- położenie gładzi gipsowych oraz pomalowanie ścian
- położenie nowych paneli, płytek
- generalny remont łazienki
- wymiana drzwi wewnętrznych i zewnętrznych
- instalacja nowoczesnego oświetlenie LED.
- wykonana nowoczesna zabudowa kuchenna

W mieszkaniu znajduje się duża, funkcjonalna, widna kuchnia, w której została wykonana wysokiej klasy zabudowa meblowa przez stolarza. Zainstalowano wszelkie niezbędne sprzęty AGD znanych marek tj: okap, piekarnik elektryczny, płyta indukcyjna, lodówko-zamrażarka oraz zmywarka. Łazienki w mieszkaniu zostały zaprojektowane w nowoczesnym stylu. Zainstalowano w niej wysokiej klasy armaturę oraz energooszczędne i modne oświetlenie LED, a także wstawiono pralkę. W przedpokoju znajduje się wysokiej klasy szafa z lustrem w zabudowie wykonana przez stolarza na wymiar. Do wykończenia mieszkania zostały użyte wysokogatunkowe materiały w nowoczesnym dizajnie: świetnej jakości farby w jasnych kolorach, panele o wysokiej klasie oraz energooszczędne i modne oświetlenie.

Nieruchomość położona jest w wyjątkowo dogodnej lokalizacji, która idealnie sprawdzi się jako miejsce dla rodziny, doskonałe położenie oraz bliskość niezbędnej infrastruktury sprawia, że mieszkanie stanowi bardzo opłacalną lokatę kapitału jeżeli chodzi o wynajem. Zaledwie 5 minut drogi autem dzieli prezentowaną nieruchomość od CH ECHO. W promieniu kilkudziesięciu metrów znajdują się również, szkoły, przedszkola, przychodnia zdrowia. Bardzo blisko są również przystanki komunikacji miejskiej zapewniające dobre połączenie z centrum oraz wszystkimi innymi dzielnicami miasta.

Jeżeli chcesz bezpiecznie przeprowadzić transakcję kupna, to koniecznie skorzystaj z pomocy profesjonalnego biura nieruchomości, które ma doświadczenie w obrocie nieruchomościami, zna rynek i współpracuje z kancelarią notarialną. We współpracy z radcą prawnym przygotowujemy umowę przedwstępną, uczestniczymy w negocjacjach, pomagamy uregulować stan prawny nieruchomości, kompletujemy wszystkie dokumenty do aktu notarialnego, uczestniczymy w akcie notarialnym, wykonujemy protokół zdawczo odbiorczy. Tę kompleksową usługę wykonamy na preferencyjnych warunkach.
Współpracujemy z najlepszymi ekspertami finansowymi w Kielcach, którzy znajdą dla Państwa najtańszy kredyt hipoteczny i przeprowadzą sprawnie całą procedurę kredytową. Dzięki współpracy ekspertów proces kredytowy jest przeprowadzony skutecznie i Państwa zaangażowanie co do formalności jest ograniczone do minimum.

Serdecznie zapraszam na prezentację mieszkania
CENA : 549 000zł
Opiekun oferty:
Agata Kunecka

 

Nota prawna

Opis oferty zawarty na stronie internetowej sporządzany jest na podstawie oględzin nieruchomości oraz informacji uzyskanych od właściciela, może podlegać aktualizacji i nie stanowi oferty określonej w art. 66 i następnych K.C.

Szczegóły oferty

Symbol oferty TWJ-MS-2500
Powierzchnia 53,88 m²
Powierzchnia użytkowa 53,88 m²
Powierzchnia balkonów/tarasów 2,50 m²
Liczba pokoi 3
Piętro 2
Rodzaj budynku blok
Technologia budowlana wielka płyta
Standard
Opłaty w czynszu CO, woda/ryczałt na wodę
Opłaty wg liczników prąd
Liczba pięter w budynku 4
Piwnica 6,00 m²
Stan lokalu po generalnym remoncie
Stan prawny Spółdzielcze własnościowe
Mies. czynsz admin. 550 PLN
Okna PCV
Instalacje nowe
Balkon jest
Liczba balkonów 1
Rok budowy 1986
Woda ciepła - terma
Ogrzewanie centralne
Usytuowanie dwustronne

Pomieszczenia

Typ kuchni kuchnia jasna, osobno
Rodzaj kuchni oddzielna i widna

Kalkulator kredytowy

PLN
%
Wysokość raty

Kalkulator kosztów

PLN
PLN
PLN
PLN
PLN
PLN
%
PLN
Podatek od czynności cywilno-prawnych
Taksa notarialna (opłata notarialna)
VAT od taksy notarialnej (opłaty notarialnej)
Wniosek do WKW
VAT od wniosku do WKW
Prowizja agencji nieruchomości
VAT od prowizji agencji nieruchomości
Wypisy aktu notarialnego - około
RAZEM (cena + opłaty)

Podobne oferty

mieszkanie na sprzedaż - Kielce, Centrum

mieszkanie na sprzedaż

Kielce, Centrum
3 pokoje 58,43 m2 10 919,05 zł/m2
mieszkanie na sprzedaż - Kielce, Baranówek

mieszkanie na sprzedaż

Kielce, Baranówek
3 pokoje 66,40 m2 7 966,87 zł/m2
mieszkanie na sprzedaż - Kielce

mieszkanie na sprzedaż

Kielce
2 pokoje 46,11 m2 10 713,51 zł/m2
mieszkanie na sprzedaż - Kielce, Na Stoku

mieszkanie na sprzedaż

Kielce, Na Stoku
3 pokoje 58,12 m2 8 258,76 zł/m2

Napisz do nas

Proszę wypełnić to pole
Proszę wypełnić to pole
Proszę wypełnić to pole
Proszę wypełnić to pole
Trwa wysyłanie...

Ta strona wykorzystuje pliki cookies w celach statystycznych oraz w celu dostosowania naszych serwisów do indywidualnych potrzeb klientów. Zmiany ustawień dotyczących plików cookie można dokonać w dowolnej chwili modyfikując ustawienia przeglądarki. Korzystanie z tej strony bez zmian ustawień dotyczących cookies oznacza, że będą one zapisane w pamięci urządzenia.

rozumiem