Kielce, Na stoku

Mieszkanie na sprzedaż

Opis nieruchomości

TYLKO U NAS!
Biuro Nieruchomości TWOJE M
Prezentuje na sprzedaż

2 pokojowy apartament z 2025 roku w Rezydencji Sikorskiego

z garażem podziemnym oraz ogrodem. 

 
 
Prezentujemy Państwu na sprzedaż przestronne, komfortowe 2 pokojowe mieszkanie w stanie deweloperskim o powierzchni użytkowej 52,06 m², usytuowane na parterze i zlokalizowane w doskonałej lokalizacji Kielc Osiedle Na Stoku ulica Sikorskiego. 
 
Atuty mieszkania:
- parter z dużym ogrodem o pow. 28,46 m2
-klimatyzacja,
-stan deweloperski,
-rok budowy 2025, 

-miejsce postojowe w garażu podziemnym,
-przystosowany dla osób niepełnosprawnych,
-ogrzewanie i ciepła woda z sieci miejskiej.

 

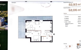
Na powierzchnię mieszkania składają się:

  • przedpokój o pow. 6, 55 m2
  • salon z aneksem kuchennym o pow. 25,47 m2
  • duża sypialnia o pow. 14,75 m2
  • łazienka o pow. 5,29 m2.
Do mieszkania przynależy ogród o pow. 28,46 m2 z wyjściem z sypialni i z salonu, a także miejsce postojowe w garażu podziemnym płatne dodatkowo 49 000 złotych.

Mieszkanie w stanie deweloperskim z dużymi przeszkleniami, które zapewniają dużo naturalnego światła. Mieszkanie wyposażone w instalację do klimatyzacji, a także ekran wideo domofon. 

Budynki wykonane z gustownej bryły w naturalnych barwach (szarości i brązy) oraz eleganckich balustrad wykonanych z połączenia szkła i stali. Rezydencja Sikorskiego jest przystosowana dla osób niepełnosprawnych, dla których przygotowano 10 dedykowanych miejsc postojowych oraz szerokie windy zapewniające swobodne poruszenie się z parkingów, garaży do mieszkań. Osiedle Rezydencję Sikorskiego stanowią cztery budynki mieszkalne.

Doskonała lokalizacja - Osiedle Na Stoku. Na osiedlu znajduje się żłobek, szkoła, przedszkole, przystanek, liczne punkty usługowe, Kufland, drogerie, ścieżki rowerowe, tereny rekreacyjne. Mieszkanie ze względu na strategiczne położenia sprawdzi się doskonale jako inwestycja zarówno pod najem długo i krótko terminowy.

CENA: 572 000zł
do negocjacji


Serdecznie zapraszam na prezentację

Opiekun oferty:

Daria Dulęba


Jeżeli chcesz bezpiecznie przeprowadzić transakcję kupna, koniecznie skorzystaj z pomocy profesjonalnego biura nieruchomości, które ma doświadczenie w obrocie nieruchomościami, zna rynek i współpracuje z kancelarią notarialną. We współpracy z radcą prawnym przygotowujemy umowę przedwstępną, uczestniczymy w negocjacjach, pomagamy uregulować stan prawny nieruchomości, kompletujemy wszystkie dokumenty do aktu notarialnego, uczestniczymy w akcie notarialnym, wykonujemy protokół zdawczo odbiorczy. Tę kompleksową usługę wykonamy na preferencyjnych warunkach.


Współpracujemy z najlepszymi ekspertami finansowymi w Kielcach, którzy znajdą dla Państwa najtańszy kredyt hipoteczny i przeprowadzą sprawnie całą procedurę kredytową. Dzięki współpracy ekspertów proces kredytowy jest przeprowadzony skutecznie, a Państwa zaangażowanie co do formalności jest ograniczone do minimum.

Nota prawna

Opis oferty zawarty na stronie internetowej sporządzany jest na podstawie oględzin nieruchomości oraz informacji uzyskanych od właściciela, może podlegać aktualizacji i nie stanowi oferty określonej w art. 66 i następnych K.C.

Szczegóły oferty

Symbol oferty TWJ-MS-2477
Powierzchnia 52,06 m²
Powierzchnia użytkowa 52,06 m²
Powierzchnia balkonów/tarasów 28,46 m²
Liczba pokoi 2
Piętro parter
Rodzaj budynku apartamentowiec
Technologia budowlana beton, cegła
Standard
Opłaty w czynszu administracja, Części wspólne, ogrzewanie, sprzątanie, Winda, woda, wywóz śmieci
Opłaty wg liczników prąd
Liczba pięter w budynku 5
Stan lokalu deweloperski
Stan prawny Odrębna własność lokalu
Mies. czynsz admin. 500 PLN
Okna PCV 3 szyby, ciepły montaż
Instalacje ELEKTRYCZNA
Balkon jest
Liczba tarasów 1
Rok budowy 2025
Parking strzeżony (odległość w metrach) 50 m
Widok na osiedle
Gaz brak
Woda ciepła - miejska
Dojazd asfalt
Otoczenie osiedle
Ogrzewanie C.O. Z SIECI MIEJSKIEJ
Alarm tak
Odległość do komunikacji publicznej [m] 100 m
Odl. do sklepu [m] 100 m
Odl. do szkoły [m] 300 m
Odl. do przedszkola [m] 300 m
Winda tak
Liczba wind 1
Tarasy taras duży
Usytuowanie narożne
Drzwi antywłamaniowe tak
Przystosowania dla niepełnosprawnych tak

Pomieszczenia

Typ kuchni aneks kuchenny połączony z jadalnią i salonem
Rodzaj kuchni aneks kuchenny - połączony z salonem
Powierzchnia kuchni 25,47 m2
Podłoga kuchni wylewka

Lokalizacja

Kalkulator kredytowy

PLN
%
Wysokość raty

Kalkulator kosztów

PLN
PLN
PLN
PLN
PLN
PLN
%
PLN
Podatek od czynności cywilno-prawnych
Taksa notarialna (opłata notarialna)
VAT od taksy notarialnej (opłaty notarialnej)
Wniosek do WKW
VAT od wniosku do WKW
Prowizja agencji nieruchomości
VAT od prowizji agencji nieruchomości
Wypisy aktu notarialnego - około
RAZEM (cena + opłaty)

Podobne oferty

mieszkanie na sprzedaż - Kielce

mieszkanie na sprzedaż

Kielce
3 pokoje 55,79 m2 12 995,16 zł/m2
mieszkanie na sprzedaż - Kielce, Centrum

mieszkanie na sprzedaż

Kielce, Centrum
3 pokoje 58,43 m2 10 919,05 zł/m2
mieszkanie na sprzedaż - Kielce, Pod Dalnią

mieszkanie na sprzedaż

Kielce, Pod Dalnią
3 pokoje 50,00 m2 8 780,00 zł/m2
mieszkanie na sprzedaż - Kielce, Bocianek

mieszkanie na sprzedaż

Kielce, Bocianek
2 pokoje 40,84 m2 11 251,22 zł/m2

Napisz do nas

Proszę wypełnić to pole
Proszę wypełnić to pole
Proszę wypełnić to pole
Proszę wypełnić to pole
Trwa wysyłanie...

Ta strona wykorzystuje pliki cookies w celach statystycznych oraz w celu dostosowania naszych serwisów do indywidualnych potrzeb klientów. Zmiany ustawień dotyczących plików cookie można dokonać w dowolnej chwili modyfikując ustawienia przeglądarki. Korzystanie z tej strony bez zmian ustawień dotyczących cookies oznacza, że będą one zapisane w pamięci urządzenia.

rozumiem