Kielce

Mieszkanie na sprzedaż

Opis nieruchomości

NOWOCZESNY APARTAMENT 2-POKOJOWY Z TARASEM 100 m² -BLISKO GALERII ECHO- NOWA INWESTYCJA SKY TRUST I ETAP

Biuro Nieruchomości TWOJE M prezentuje wyjątkowy apartament w stanie deweloperskim, zlokalizowany w jednej z najbardziej pożądanych części miasta — tuż przy Galerii Echo.

To propozycja dla osób, które cenią nowoczesną architekturę, przestrzeń i możliwość stworzenia wnętrza dopasowanego do własnego stylu życia.


Na sprzedaż wyjątkowy apartament położony na 4. piętrze prestiżowego apartamentowca Sky Trust przy ul. Aleja Solidarności 32A w Kielcach.

To propozycja dla osób ceniących komfort, prywatność oraz ponadstandardową przestrzeń na świeżym powietrzu.

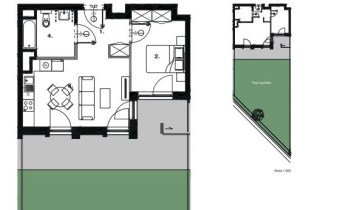
Mieszkanie zostało zaprojektowane z myślą o wygodzie i funkcjonalności. Składa się z:

  • przestronnego salonu z aneksem kuchennym,
  • komfortowej sypialni,
  • korytarza,
  • eleganckiej łazienki.

Największym atutem nieruchomości jest imponujący, prywatny taras o powierzchni aż 100 m², dostępny zarówno z salonu, jak i sypialni. To unikalna przestrzeń, z której rozpościera się widok na panoramę Kielc – idealna do relaksu, spotkań czy stworzenia własnej zielonej strefy.

Dodatkowym wyróżnikiem jest ogród zimowy, harmonijnie wkomponowany w bryłę mieszkania. Dzięki przeszklonej, składanej zabudowie możesz korzystać z tej przestrzeni przez cały rok, dostosowując ją do warunków pogodowych.

Budynek zapewnia wysoki standard życia:

  • całodobowa obsługa portierska,
  • monitoring,
  • wysoki poziom bezpieczeństwa i komfortu.

Do mieszkania przynależą:

  • miejsce parkingowe w garażu podziemnym (dodatkowo płatne 50 000 zł),
  • komórka lokatorska: (dodatkowo płatna 20 000 zł)

???? Lokalizacja
Nieruchomość znajduje się w jednej z najlepszych lokalizacji w Kielcach. W bezpośrednim sąsiedztwie:

  • galerie handlowe,
  • uczelnie wyższe,
  • restauracje, sklepy i punkty usługowe,
  • przystanki komunikacji miejskiej.

To idealna propozycja zarówno do zamieszkania, jak i jako inwestycja pod wynajem.

 

Zadzwoń i umów się na prezentację — takie mieszkania z tak dużym tarasem pojawiają się naprawdę rzadko.

CENA : 579 000 zł
do negocjacji


Opiekun oferty:

Karolina Kobus

Licencjonowany Pośrednik Nieruchomości
Numer licencji PFRN 
31238

Jeżeli chcesz bezpiecznie przeprowadzić transakcję kupna, to koniecznie skorzystaj z pomocy profesjonalnego biura nieruchomości, które ma doświadczenie w obrocie nieruchomościami, zna rynek i współpracuje z kancelarią notarialną. We współpracy z radcą prawnym przygotowujemy umowę przedwstępną, uczestniczymy w negocjacjach, pomagamy uregulować stan prawny nieruchomości, kompletujemy wszystkie dokumenty do aktu notarialnego, uczestniczymy w akcie notarialnym, wykonujemy protokół zdawczo odbiorczy. Tę kompleksową usługę wykonamy na preferencyjnych warunkach.
Współpracujemy z najlepszymi ekspertami finansowymi w Kielcach, którzy znajdą dla Państwa najtańszy kredyt hipoteczny i przeprowadzą sprawnie całą procedurę kredytową. Dzięki współpracy ekspertów proces kredytowy jest przeprowadzony skutecznie i Państwa zaangażowanie co do formalności jest ograniczone do minimum.

Nota prawna

Opis oferty zawarty na stronie internetowej sporządzany jest na podstawie oględzin nieruchomości oraz informacji uzyskanych od właściciela, może podlegać aktualizacji i nie stanowi oferty określonej w art. 66 i następnych K.C.

Certyfikat energetyczny

Certyfikat energetyczny
Wskaźnik EP kwh/(m2 rok)
62.2
62.2
62.2
62.2
62.2
62.2
62.2
62.2
Wskaźnik EP: 62.2
kwh/(m2rok)
Wskaźnik EK: 75,95
kwh/(m2rok)
Wskaźnik EU: 52,31
kwh/(m2rok)

Szczegóły oferty

Symbol oferty TWJ-MS-2669
Powierzchnia 41,00 m²
Liczba pokoi 2
Piętro 4
Rodzaj budynku apartamentowiec
Standard
Opłaty w czynszu ogrzewanie, ochrona, monitoring, fundusz remontowy, Części wspólne, administracja, wywóz nieczystości, woda ciepła, woda, Winda, sprzątanie
Opłaty wg liczników prąd
Liczba pięter w budynku 16
Garaż miejsce garażowe
Piwnica 2,21 m²
Stan lokalu deweloperski
Stan prawny Odrębna własność lokalu
Mies. czynsz admin. 690 PLN
Okna PCV 3 szyby, ciepły montaż
Instalacje nowe
Balkon jest
Liczba balkonów 101
Liczba tarasów 1
Rok budowy 2025
Parking strzeżony (odległość w metrach) 10 m
Widok panorama miasta
Gaz brak
Woda ciepła - miejska
Dojazd ASFALTOWA
Otoczenie centrum miasta
Ogrzewanie C.O. miejskie
Umeblowanie brak
Alarm tak
Odległość do komunikacji publicznej [m] 100 m
Odl. do szkoły [m] 200 m
Odl. do przedszkola [m] 200 m
Winda tak
Liczba wind 2
Tarasy taras duży
Usytuowanie jednostronne
Drzwi antywłamaniowe tak
Przystosowania dla niepełnosprawnych tak
Klucze tak

Pomieszczenia

Powierzchnia pokoi 11,18 m2
Typ kuchni aneks kuchenny połączony z jadalnią i salonem
Rodzaj kuchni aneks kuchenny - połączony z salonem
Powierzchnia kuchni 18,54 m2
Typ łazienki razem z wc
Liczba łazienek 1
Powierzchnia łazienki 5,66 m2
Liczba przedpokoi 1
Powierzchnia przedpokoi 5,73 m2
Podłoga przedpokoi wylewka

Lokalizacja

Kalkulator kredytowy

PLN
%
Wysokość raty

Kalkulator kosztów

PLN
PLN
PLN
PLN
PLN
PLN
%
PLN
Podatek od czynności cywilno-prawnych
Taksa notarialna (opłata notarialna)
VAT od taksy notarialnej (opłaty notarialnej)
Wniosek do WKW
VAT od wniosku do WKW
Prowizja agencji nieruchomości
VAT od prowizji agencji nieruchomości
Wypisy aktu notarialnego - około
RAZEM (cena + opłaty)

Uwaga: mogą wystąpić dodatkowe opłaty za założenie księgi wieczystej oraz ustanowienie hipoteki.

Podobne oferty

mieszkanie na sprzedaż - Kielce, Centrum

mieszkanie na sprzedaż

Kielce, Centrum
3 pokoje 58,43 m2 10 919,05 zł/m2
mieszkanie na sprzedaż - Kielce

mieszkanie na sprzedaż

Kielce
3 pokoje 53,10 m2 12 994,35 zł/m2
mieszkanie na sprzedaż - Kielce, Centrum

mieszkanie na sprzedaż

Kielce, Centrum
3 pokoje 48,30 m2 10 331,26 zł/m2
mieszkanie na sprzedaż - Kielce, Centrum

mieszkanie na sprzedaż

Kielce, Centrum
2 pokoje 57,86 m2 11 216,73 zł/m2

Napisz do nas

Proszę wypełnić to pole
Proszę wypełnić to pole
Proszę wypełnić to pole
Proszę wypełnić to pole

Ta strona wykorzystuje pliki cookies w celach statystycznych oraz w celu dostosowania naszych serwisów do indywidualnych potrzeb klientów. Zmiany ustawień dotyczących plików cookie można dokonać w dowolnej chwili modyfikując ustawienia przeglądarki. Korzystanie z tej strony bez zmian ustawień dotyczących cookies oznacza, że będą one zapisane w pamięci urządzenia.

rozumiem