Kielce, Centrum

Mieszkanie na sprzedaż

Opis nieruchomości

TYLKO U NAS!
Biuro Nieruchomości TWOJE M

Prezentuje 2 pokojowy apartament w Kielcach na sprzedaż lub zamianę
IDEALNA LOKALIZACJA NA START LUB POD WYNAJEM

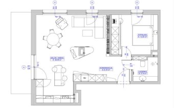
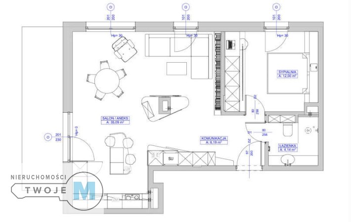
Oferujemy na sprzedaż mieszkanie o powierzchni 57,86m2 usytuowane przy Krakowskiej Rogatce naprzeciwko Wzgórza Karscha w Kielcach. Lokal znajduje się na 4 piętrze w 5 piętrowym nowoczesnym Apartamentowcu, który będzie oddany do użytku do II kwartału 2026r.

GŁÓWNE ATUTY LOKALU:
- bez podatku PCC 
- bardzo atrakcyjna lokalizacja
- funkcjonalny układ
- obok parku miejskiego
- przy samym Uniwersytecie Jana Kochanowskiego
- 700 m od ul. Sienkiewicza
-ogrzewanie podłogowe

Na powierzchnię mieszkania składają się:
- salon z aneksem kuchennym - 35,09m2
- sypialnia- 12m2
- łazienka - 4,14m2
- przedpokój- 6,19m2
- balkon 

Do mieszkania przynależy komórka lokatorska 3,2m2 dodatkowo płatna 18000zł
Do mieszkania przynależą dwa miejsca postojowe w garażu podziemnym każde dodatkowo płatne 65000zł

Oferowany apartament jest w stanie deweloperskim, co daje przyszłemu właścicielowi możliwość zaaranżowania i dostosowania wnętrza tak, by spełniało jego wymagania i potrzeby. Ze względu na usytuowanie jest to jedno z najbardziej atrakcyjnych mieszkań w inwestycji. Okna usytuowane na południe i zachód. Lokal idealnie nadaje się na wynajem oraz na start jako pierwsze mieszkanie. Ogrzewanie z sieci miejskiej. W okolicy znajdują się: - Uniwersytet Jana Kochanowskiego 300 m, - Rynek 900 m, - Park Miejski 200 m, - Rezerwat Przyrody Kadzielnia 700 m, - ul. Sienkiewicza 700 m

Współpracujemy z najlepszymi ekspertami finansowymi w Kielcach, którzy znajdą dla Państwa najtańszy kredyt hipoteczny i przeprowadzą sprawnie całą procedurę kredytową. Dzięki współpracy ekspertów proces kredytowy jest przeprowadzony skutecznie i Państwa zaangażowanie co do formalności jest ograniczone do minimum. Jeżeli chcesz bezpiecznie przeprowadzić transakcję kupna, to koniecznie skorzystaj z pomocy profesjonalnego biura nieruchomości, które ma doświadczenie w obrocie nieruchomościami, zna rynek i współpracuje z kancelarią notarialną.

We współpracy z radcą prawnym przygotowujemy umowę przedwstępną, uczestniczymy w negocjacjach, pomagamy uregulować stan prawny nieruchomości, kompletujemy wszystkie dokumenty do aktu notarialnego, uczestniczymy w akcie notarialnym, wykonujemy protokół zdawczo odbiorczy. Tę kompleksową usługę wykonamy na preferencyjnych warunkach.

 
CENA : 649 000 zł brutto
Zapraszam na prezentację mieszkania.
Tomasz Kiek Nr licencji PFRN 31235

Nota prawna

Opis oferty zawarty na stronie internetowej sporządzany jest na podstawie oględzin nieruchomości oraz informacji uzyskanych od właściciela, może podlegać aktualizacji i nie stanowi oferty określonej w art. 66 i następnych K.C.

Szczegóły oferty

Symbol oferty TWJ-MS-2406
Powierzchnia 57,86 m²
Powierzchnia użytkowa 57,86 m²
Liczba pokoi 2
Piętro 4
Rodzaj budynku apartamentowiec
Standard
Opłaty w czynszu administracja, Części wspólne, ogrzewanie, sprzątanie, woda, wywóz śmieci
Opłaty wg liczników prąd
Liczba pięter w budynku 5
Stan lokalu deweloperski
Stan prawny Odrębna własność lokalu
Okna PCV 3 szyby, ciepły montaż
Instalacje nowe
Balkon taras
Liczba balkonów 1
Rok budowy 2026
Gaz brak
Woda ciepła - miejska
Ogrzewanie C.O. miejskie
Umeblowanie brak
Winda tak
Liczba wind 1
Usytuowanie narożne
Przystosowania dla niepełnosprawnych tak

Pomieszczenia

Typ kuchni aneks kuchenny
Rodzaj kuchni aneks kuchenny - połączony z salonem

Lokalizacja

Kalkulator kredytowy

PLN
%
Wysokość raty

Kalkulator kosztów

PLN
PLN
PLN
PLN
PLN
PLN
%
PLN
Podatek od czynności cywilno-prawnych
Taksa notarialna (opłata notarialna)
VAT od taksy notarialnej (opłaty notarialnej)
Wniosek do WKW
VAT od wniosku do WKW
Prowizja agencji nieruchomości
VAT od prowizji agencji nieruchomości
Wypisy aktu notarialnego - około
RAZEM (cena + opłaty)

Uwaga: mogą wystąpić dodatkowe opłaty za założenie księgi wieczystej oraz ustanowienie hipoteki.

Podobne oferty

mieszkanie na sprzedaż - Kielce, Centrum

mieszkanie na sprzedaż

Kielce, Centrum
3 pokoje 58,43 m2 10 919,05 zł/m2
mieszkanie na sprzedaż - Kielce, Na Stoku

mieszkanie na sprzedaż

Kielce, Na Stoku
3 pokoje 58,12 m2 8 258,76 zł/m2
mieszkanie na sprzedaż - Kielce

mieszkanie na sprzedaż

Kielce
3 pokoje 53,10 m2 12 994,35 zł/m2
mieszkanie na sprzedaż - Kielce, Centrum

mieszkanie na sprzedaż

Kielce, Centrum
3 pokoje 48,30 m2 10 455,49 zł/m2

Napisz do nas

Proszę wypełnić to pole
Proszę wypełnić to pole
Proszę wypełnić to pole
Proszę wypełnić to pole

Ta strona wykorzystuje pliki cookies w celach statystycznych oraz w celu dostosowania naszych serwisów do indywidualnych potrzeb klientów. Zmiany ustawień dotyczących plików cookie można dokonać w dowolnej chwili modyfikując ustawienia przeglądarki. Korzystanie z tej strony bez zmian ustawień dotyczących cookies oznacza, że będą one zapisane w pamięci urządzenia.

rozumiem