Tylko u NAS!
Biuro Nieruchomości TWOJE M
prezentuje ofertę sprzedaży lub zamiany
Ustawnego, 2 pokojowego mieszkania po generalnym remoncie
Idealne dla rodziny jak i pod inwestycje z uwagi na kapitalną lokalizację !
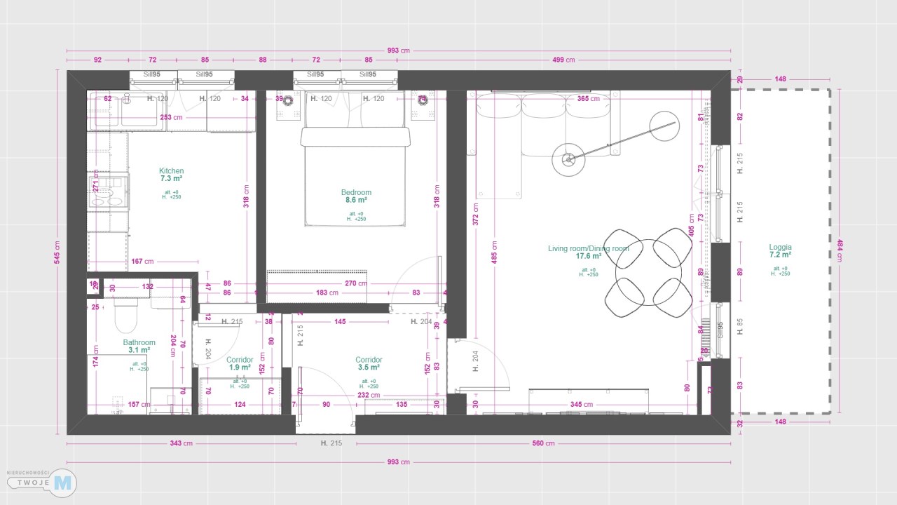
Mieszkanie 2 pokojowe o powierzchni 42 m2, z osobną widną kuchnią, zlokalizowane na 2 piętrze w kameralnym 4 piętrowym bloku, przy ul. Marszałkowskiej 11. Nieruchomość położona w jednej z atrakcyjniejszych lokalizacji Kielc - Osiedle SADY!
W ofercie są użyte zdjęcia z poprzednich realizacji, z uwagi na aktualnie przeprowadzany remont.
Główne atuty nieruchomości
- cicha okolica, bliska odległość do Centrum,
- oddzielna, widna kuchnia,
- duży balkon z widokiem na pobliską zieleń,
- bliskość terenów rekreacyjnych - Dolina Silnicy.
Na powierzchnię mieszkania składają się:
- duży, widny pokój dzienny/salon z wyjściem na balkon – 17.6 m2
- ustawny pokój / sypialnia – 8.6 m2
- jasna, przestronna kuchnia z oknem – 7.3 m2
- łazienka z prysznicem i WC – 3.1 m2
- duży korytarz, z którego mamy oddzielne wejścia do pomieszczeń – 5.4 m2
Do nieruchomości przynależy również piwnica.
Piękne mieszkanie po generalnym remoncie! Nowoczesny design, wysokiej jakości wykończenia - idealne miejsce do życia dla wymagających osób. Zainstalowane wszelkie niezbędne sprzęty AGD codziennego użytku. Stałe zabudowy meblowe wykonane przez sprawdzonego stolarza.
Wykonane prace remontowe:
Dużym atutem nieruchomości jest jej lokalizacja – bliska odległość do Centrum miasta, przy jednoczesnej ciszy i spokoju. Pożądana ekspozycja okien północny-zachód, z fantastycznym widokiem na pobliską zieleń. Dogodna lokalizacja pozwala na łatwy dostęp do niezbędnej infrastruktury, która ułatwia codzienne życie mieszkańcom.
Najbliższe odległości:
- Collegium Medicum - 7 minut
- Politechnika Świętokrzyska – 5 minut
- Przedszkole – 1 minuta
- Centrum / Rynek - 12 minut
- Galeria Korona - 7 minut
- Galeria Echo - 7 minut
- Sklepy - 2 minuty
- Kościół – 3 minuty
Cena: 419 000 zł
Zapraszam do kontaktu w celu uzyskania dodatkowych informacji oraz umówienia się na prezentację
Weronika Mularczyk
Licencjonowany Pośrednik Nieruchomości
Numer licencji PFRN 31551
Współpracujemy z najlepszymi ekspertami finansowymi w Kielcach, którzy znajdą dla Państwa najtańszy kredyt hipoteczny i przeprowadzą sprawnie całą procedurę kredytową. Dzięki współpracy ekspertów proces kredytowy jest przeprowadzony skutecznie, a Państwa zaangażowanie co do formalności jest ograniczone do minimum.
Jeżeli chcesz bezpiecznie przeprowadzić transakcję kupna, koniecznie skorzystaj z pomocy profesjonalnego biura nieruchomości, które ma doświadczenie w obrocie nieruchomościami, zna rynek i współpracuje z kancelarią notarialną. We współpracy z radcą prawnym przygotowujemy umowę przedwstępną, uczestniczymy w negocjacjach, pomagamy uregulować stan prawny nieruchomości, kompletujemy wszystkie dokumenty do aktu notarialnego, uczestniczymy w akcie notarialnym, wykonujemy protokół zdawczo odbiorczy. Tę kompleksową usługę wykonamy na preferencyjnych warunkach.




Uwaga: mogą wystąpić dodatkowe opłaty za założenie księgi wieczystej oraz ustanowienie hipoteki.